Loading...
Loading...

Biệt thự 3 tầng ở Bình Trưng Đông Quận 2

Là căn biệt thự 3 tầng có lối thiết kế theo xu hướng hiện đại nhưng vẫn hòa vào thiên nhiên, các chi tiết kết hợp hài hòa tạo ra sự khác biệt, sang trọng ngay từ cái nhìn bên ngoài.

Chia sẻ:

  • Chia sẻ qua viber bài: Biệt thự 3 tầng ở Bình Trưng Đông Quận 2
  • Chia sẻ qua reddit bài:Biệt thự 3 tầng ở Bình Trưng Đông Quận 2

Mô tả Sản phẩm

Là căn biệt thự 3 tầng có lối thiết kế theo xu hướng hiện đại nhưng vẫn hòa vào thiên nhiên, các chi tiết kết hợp hài hòa tạo ra sự khác biệt, sang trọng ngay từ cái nhìn bên ngoài.

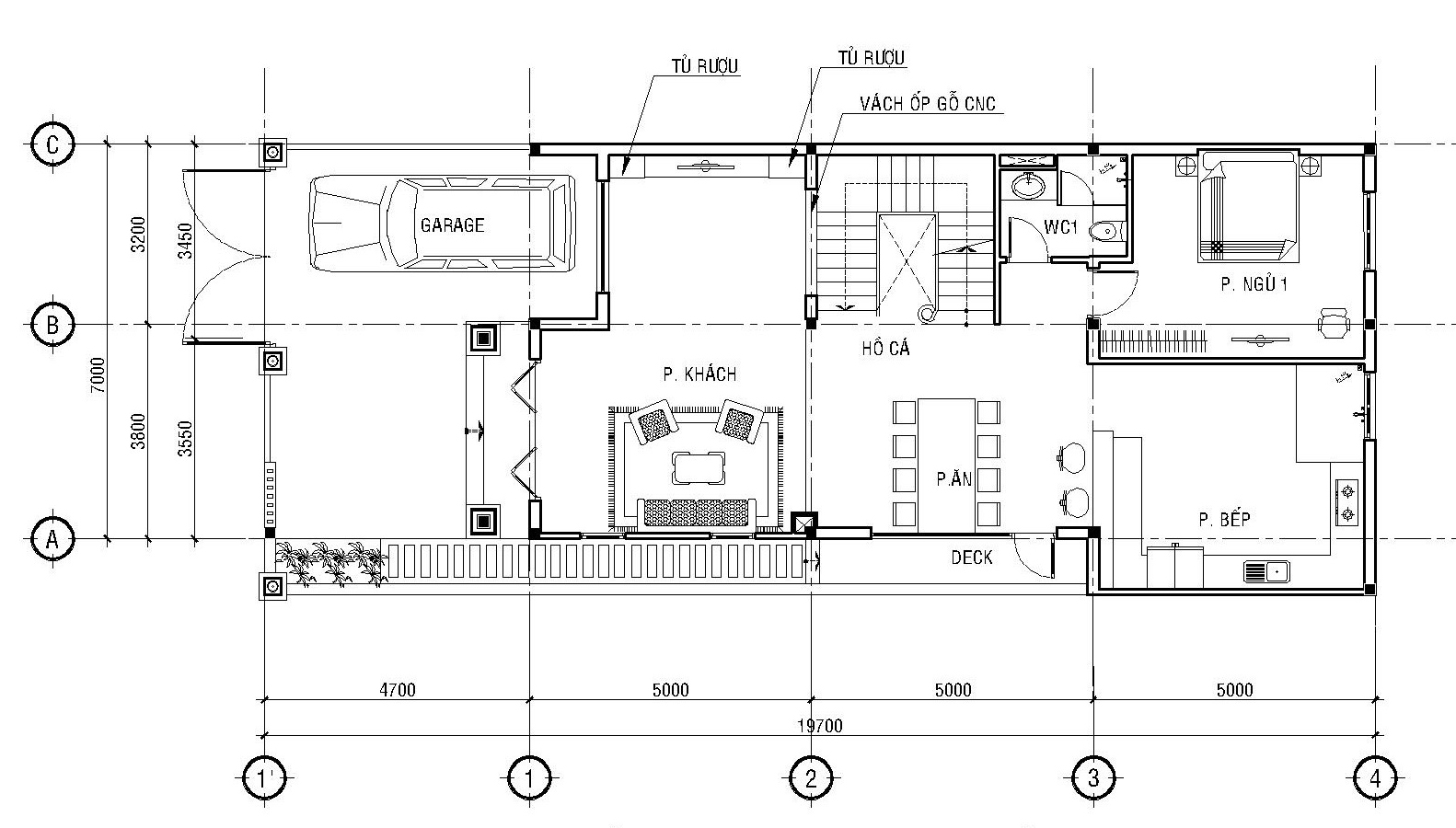
Tọa lạc trong con hẻm nhỏ Phường Bình Trưng Đông Quận 2 TP.Hồ Chí Minh. Hồ sơ xin phép xây dựng quận 2 được vẽ tối đa diện tích trước đó đã góp phần giúp kiến trúc sư thỏa mái hơn trong việc lên ý tưởng thiết kế kiến trúc,ngôi biệt thự 3 tầng. Sân vườn bao xung quanh tạo cảnh núi đồi như nằm trên cao nguyên Đà Lạt mông mơ. Cao độ nền biệt thự quân 2 được nâng lên tăng phần lấy gió cho phòng khách.

Nhìn từ bên ngoài, người ta có thể thấy ngay được sự kết hợp độc đáo giữa các loại vật liệu, chi tiết thiết kế tạo nên những điểm nhấn rất đáng chú ý. Phần bên dưới được ốp bằng loại đá cao cấp nhằm tạo nên nét sang trọng. Song song đó, loại gạch đỏ được sử dụng ở các mái kiểu ngay cửa ra vào, ban công và một phần trên cùng của mái nhà tạo điểm nổi bật của màu tường trắng xung quanh. Ngoài ra, việc sử dụng mái ngói kiểu Nhật đã tạo thêm phần sang trọng, hiện đại cho căn biệt thự này.

Bên cạnh các thiết kế hiện đại khi nhìn căn biệt thự ở hướng chính diện, chúng ta có thể nhìn thấy được những chi tiết rất "cổ điển" thông qua chi tiết mái ngói ngói nhấp nhô trên các cửa sổ ở hai bên của ngôi nhà. Đúng theo lối thiết kế hiện đại hòa vào thiên nhiên, các ban công hai bên và phí trước ngôi biệt thự sẽ là nơi những thành viên trong gia đình co thể hít thở không khí tươi mát của khí trời vào những buổi sáng sớm hoặc khi đêm về.

Gara nằm ở vị trí bên trái và thiết kế luôn trong nhà có cổng riêng giúp việc di chuyển xe vào nhà được thuận tiện và an toàn.

 

Điểm đặc biệt nhất trong thiết kế của căn biệt thự này chính là năm ở các cửa kính và cửa sổ xung quanh ngôi nhà, qua đó giúp ngôi nhà luôn tiếp nhận đầy đủ ánh sáng tự nhiên từ bên ngoài vào. Ngoài ra, việc bố trí nhiều cửa sổ như vậy cũng giúp việc lấy gió tự nhiên trở nên dễ dàng hơn, chỉ việc mở tung các sửa sổ sẽ cho phép chủ nhân của căn biệt thự đón các luồng gió mát lạnh từ mọi hướng.

Toàn bộ các khung cửa của căn biệt thự đều được sử dụng chất liệu gỗ cao cấp cho độ bền lâu dài theo thời gian, màu sắc hài hoàn với toàn bộ thiết kế sang trọng.

Nhìn vào tổng thể thiết kế của ngôi biệt thự, chúng ta thấy được chủ nhân của ngôi nhà đã muốn tận dụng tối đa diện tích nhưng vẫn dành riêng những lối đi nhỏ với những mảng cỏ để vừa giúp việc di chuyển trong khuôn viên nhà thuận tiện nhất, đồng thời có không gian xanh tạo sự thoải mái. Với thiết kế này, nó sẽ là nơi các thành viên trong nhà có thể đi dạo thư giản vào buổi sáng sớm hoặc sau một ngày làm việc mệt mỏi.

Trên sân thượng của ngôi biệt thự vẫn có một không gian vừa đủ với giàn sắt phía trên, đây là nơi thích hợp cho việc trồng cây xanh, loại dây leo, qua đó có thể tạo nên một khu vườn thu nhỏ ngay phía bên ngôi nhà.

Tính hiện đại, sang trọng của căn biệt thự này không chỉ nằm ở thiết kế bên ngoài, mà khi nhìn vào phần nội thất bên trong chúng ta vẫn có thể thấy rất rõ điều đó. Với chi tiết trần thạch cao trắng tinh tế, kết hợp hệ thống đèn led chiếu sáng tô điểm thêm sự lộng lẫy của ngôi nhà.

Đồ dùng nội thất và một vài chi tiết bằng gỗ, với tông màu hài hòa góp phần tạo thêm sự sang trọng cho không gian bên trong của ngôi nhà.

Ở vị trí cầu thang của căn biệt thự, một mảng trang trí với gạch ốp và các bình hoa đặt kế bên tuy đơn giản nhưng lại là nét chấm tạo điểm nhấn rất tinh tế, có tính thẩm mỹ cao.

 

Dự án liên quan

Dự án nhà biệt thự Moject Villa

Thiết kế biệt thự hiện đại có hồ bơi đang là một xu hướng thiết kế biệt thự hot trong thời điểm này. Bởi biệt thự có hồ bơi vừa đáp ứng sự tiện ích sử dụng chính là nơi để thư giãn, đáp ứng cho nhu cầu bơi lội thì có còn thể hiện được sự đẳng cấp của chủ nhà. Dưới đây ENVARCH sẽ giới thiệu đến các bạn các mẫu biệt thự hiện đại có hồ bơi gây mê mẩn với người nhìn.
Liên hệ

Dự án nhà biệt thự 254 Nguyễn Đình Chiểu

Dự án được thiết kế đặc biệt theo yêu cầu của chủ hộ. Theo đó chủ hộ yêu cầu một thiết kế thoáng đãng và mang lối thiết kế Châu Âu kết hợp thiên nhiên. ENVARCH chúng tôi đã dành thời gian 3 tháng để lên ý tưởng và thiết kế đặc biệt cho khách hàng này.
Liên hệ

Dự án nhà biệt thự Moject Villa

Thiết kế biệt thự hiện đại có hồ bơi đang là một xu hướng thiết kế biệt thự hot trong thời điểm này. Bởi biệt thự có hồ bơi vừa đáp ứng sự tiện ích sử dụng chính là nơi để thư giãn, đáp ứng cho nhu cầu bơi lội thì có còn thể hiện được sự đẳng cấp của chủ nhà. Dưới đây ENVARCH sẽ giới thiệu đến các bạn các mẫu biệt thự hiện đại có hồ bơi gây mê mẩn với người nhìn.
Liên hệ

Anna Villa

Đà Lạt luôn là thiên đường tuyệt vời với các tín đồ xê dịch, người ta yêu Đà Lạt bởi 1001 lý do khác nhau nhưng tựu chung lại ai cũng phải gật gù rằng thành phố cao nguyên này chính là nơi lý tưởng nhất để thư giãn tâm hồn và các khu nghỉ dưỡng giữa rừng ở Đà Lạt chính là lựa chọn hoàn hảo nhất để bạn tận hưởng những phút giây thư thái, hít thở không khí trong lành giữa một không gian tiện nghi, đẳng cấp nhưng cũng không kém phần thơ mộng. 
Liên hệ

Công trình biệt thự nhà vườn

Công trình biệt thự nhà vườn tạo ra môi trường sống xanh, đem lại cuộc sống tiện nghi và thoải mái cho cả gia đình
Liên hệ

Dự án nhà ở số 33

Dự án xây dựng cho khách hàng nhà ở đậm chất hiện đại cho các gia đình yêu thích sự đơn giản rộng rãi nhất. Lấy cảm hứng từ nhà ở các nước ở Châu Á, chúng tôi đã cho ra một bản vẽ thiết kế vô cùng tuyệt vời cho khách hàng.
Liên hệ
Loading...
newindow.jsc@gmail.com
Loading...
newindow.jsc@gmail.com